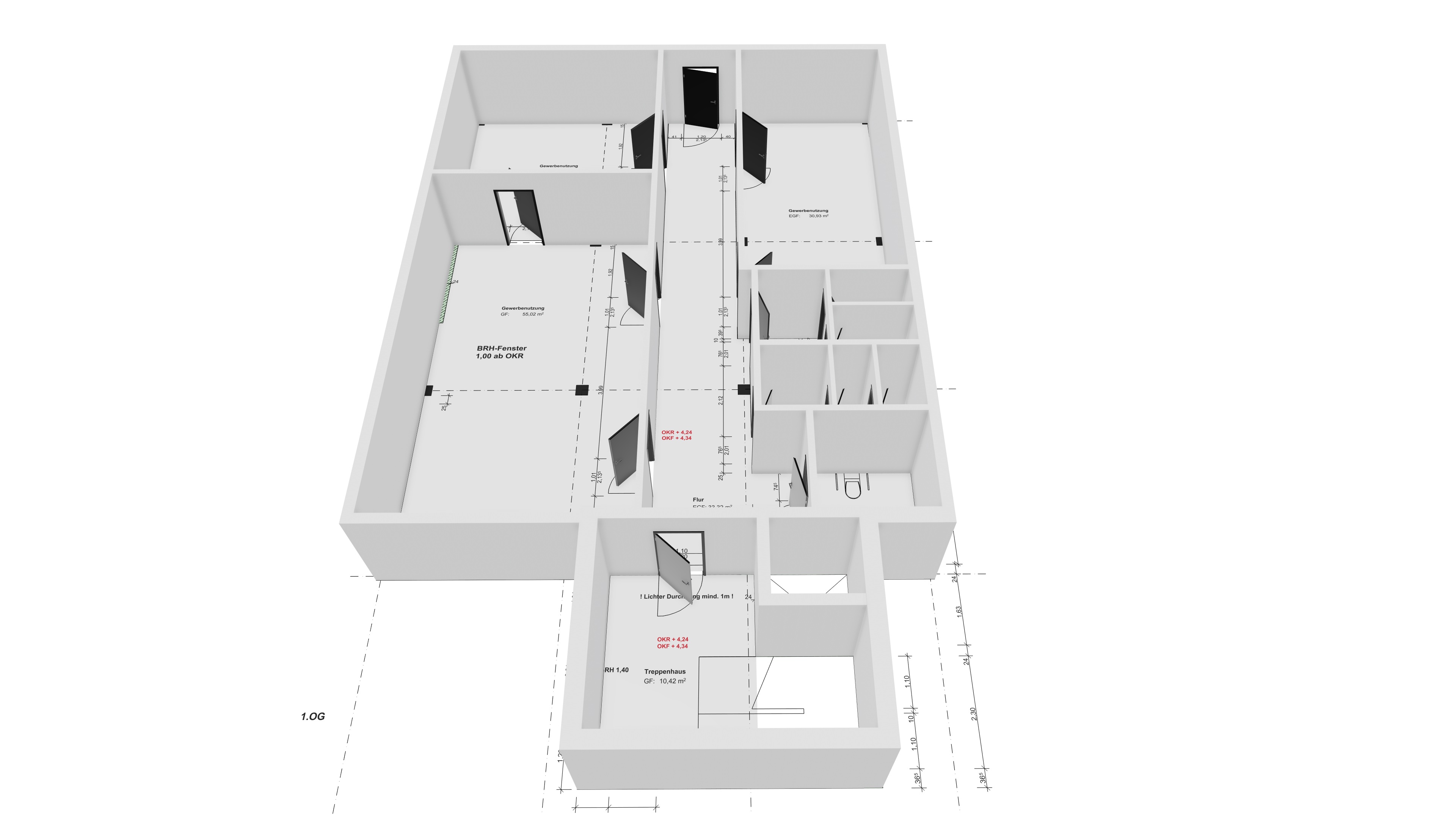
immoEXPERTs Virtueller Immobilien Showroom / immoEXPERTs Leistungsspiegel und Beispiele / Dein GewerbeGrundriss in 3D